

| Classe energetica |
|
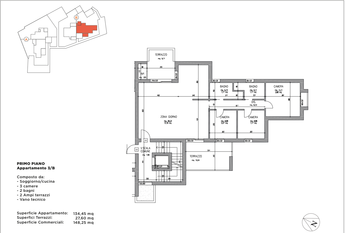
| Riferimento | AC04-3B |
| Categoria | Appartamento - In vendita |
| Prezzo | €311.325,00 |
| Descrizione | Il bello di poter andare a piedi in centro ed allo stesso tempo di poter godere degli spazi e le comodità di un moderno complesso abitativo. La location, tra le Vie Osoppo e Rotate, a pochi metri da Viale Grigoletti e a due minuti a piedi dal Don Bosco è di assoluto pregio, riservata ma vicino ai principali servizi. Due palazzine da 9 unità bi/tri camere e due attici progettate e realizzate con tecnologie d'avanguardia. Comfort invernale ed estivo, comfort acustico, dettagli nelle rifiniture, dotazione completa, parco giochi privato, sono solo alcuni dei valori aggiunti di questa proposta immobiliare. L'unità immobiliare che qui proponiamo, al primo piano, si compone di ingresso su soggiorno e cucina in open-space, due terrazzi di 16mq e 10mq, camera matrimoniale, due bagni finestrati ed ulteriori due camere. Sono disponibili, con prezzo a parte, autorimessa e cantina al piano interrato.
Classe energetica: A4 di progetto |
| Mq. commerciali | 148,25 |
| N° livelli | 1 |
| N° camere | 3 |
| N° bagni | 2 |
| Terrazza | 15,54mq + 9,71mq |
| Cantina | Disponibile con prezzo a parte |
| Garage | Disponibile con prezzo a parte |
| Riscaldamento | Centralizzato contabilizzato a pavimento. |
Bruno Paludet
336808680
bruno@paludet.it
Paludet & Partners
Galleria Asquini 1, 33170
Pordenone, Italy
Telefono: +39 0434 208080
Fax: +39 0434 21777